Baranya megye - Pécs - Kertváros

59.900.000 Ft

Átalakított, felújított 63m² lakás erkéllyel Pécs Kertváros

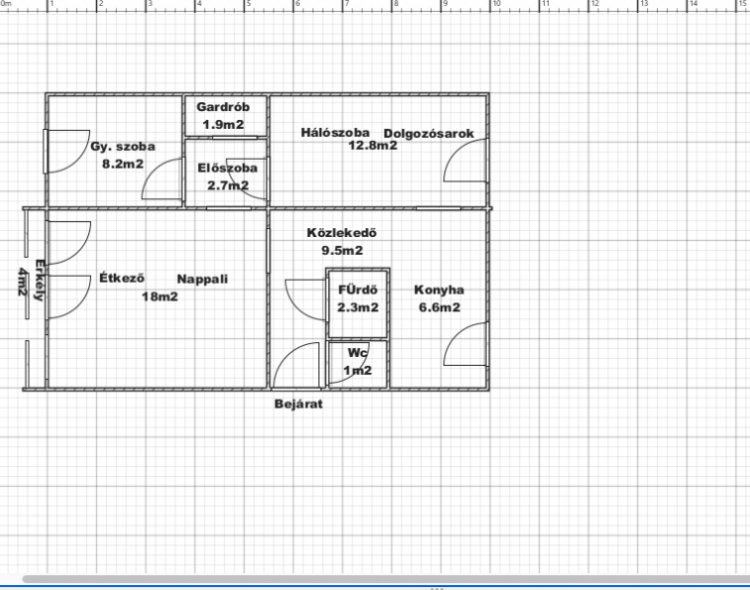
Pécs Kertváros kedvelt utcájában kínálunk megvételre egy 63 m²-es, magasföldszinti lakást egy 10 emeletes társasházban. A társasház szigetelt a panelprogram keretében, a lépcsőház tiszta, rendezett, a lakóközösség barátságos és jó együttműködő. Az ingatlan erkélyes, jól átgondoltan átalakított és igényesen felújított, minden helyisége külön nyílik, így kényelmes és praktikus életteret biztosít. Ideális választás családoknak, pároknak vagy akár befektetésnek is! A lakás világos, jól élhető terekkel rendelkezik. A nappali–étkező egy légtérben található, közvetlen erkély kapcsolattal. Hálószoba külön nyílik és dolgozó sarkot is tartalmaz. A gyerekszoba szi...

Pécs Kertváros kedvelt utcájában kínálunk megvételre egy 63 m²-es, magasföldszinti lakást egy 10 emeletes társasházban. A társasház szigetelt a panelprogram keretében, a lépcsőház tiszta, rendezett, a lakóközösség barátságos és jó együttműködő. Az ingatlan erkélyes, jól átgondoltan átalakított és igényesen felújított, minden helyisége külön nyílik, így kényelmes és praktikus életteret biztosít. Ideális választás családoknak, pároknak vagy akár befektetésnek is! A lakás világos, jól élhető terekkel rendelkezik. A nappali–étkező egy légtérben található, közvetlen erkély kapcsolattal. Hálószoba külön nyílik és dolgozó sarkot is tartalmaz. A gyerekszoba szintén külön nyílik, saját gardróbbal. WC és a fürdőszoba külön helyiségben található, a közlekedő kényelmes és praktikus. A nappali-étkezőből nyíló erkély zöldövezeti, parkra néző kilátást kínál, így tökéletes helyszín egy nyugodt reggeli kávéhoz vagy egy kellemes, lazító esti borozáshoz . Az elmúlt 5 évben a lakás számos felújításon ment keresztül: teljesen megújult, modern konyha gépesítve (beépített sütő, kerámialapos főzőlap, mosogatógép, mosógép). Új melegburkolatok, szobák esztétikai felújítása, beépített gardrób kialakítása (a gardrób bútorok a vételár részét képezik). Radiátorok cseréje, WC teljes korszerűsítése, beltéri ajtók cseréje (a fürdőszoba ajtó kivételével), valamint modern műanyag bejárati ajtó. A fürdőszoba felújítása körülbelül 10 éve már megtörtént. A komfortot egész évben biztosítja a távfűtés, valamint a 2 éves, rendszeresen karbantartott hűtő-fűtő klíma a nappaliban. A műanyag ablakok minden helyiségben redőnnyel és szúnyoghálóval felszereltek. A lakáshoz saját tároló helyiség tartozik, és az utcában ingyenes a parkolás. Az elhelyezkedés kiváló: buszmegálló 1–2 perc sétára, kiváló buszközlekedés, ahonnan az egész város könnyen és gyorsan elérhető, boltok, gyógyszertár, éttermek a közelben, bölcsőde, óvoda és iskola könnyen elérhető. Ez a lakás nemcsak esztétikailag vonzó, hanem műszakilag is felújított. A jól átgondolt elrendezés, a külön nyíló helyiségek és az erkélyes, parkra néző kilátás együtt igazán kényelmes, élhető otthont biztosít. Az adásvétel gördülékenységét biztosítja a teljes körű ügyvédi háttér, és a hitelügyintézés is rendelkezésre áll. Hívjon bátran, tekintse meg személyesen a lakást, és tegyen ajánlatot!

Ingatlan adatai

Azonosító: 38948

  • Ingatlan típusa :

  • Ingatlan mérete :

  • Ingatlan állapota :

  • Emelet :

  • Erkély :

  • Lakás

  • 63 m2

  • Felújított

  • Földszint

  • 4 m2

  • Ingatlan szerkezete :

  • Szobák száma :

  • Fűtés típusa :

  • Lift :

  • Energetika :

  • Panel

  • 3

  • Távfűtés

  • Van

  • -

Elhelyezkedés Baranya megye - Pécs - Kertváros

header-logo.png

Kérjen Ajánlatot

Független hitelközvetítőként valamennyi hazai pénzintézet ajánlata elérhető nálunk. Megversenyeztetjük Önnek a bankokat. A kiemelt együttműködésnek köszönhetően ügyfeleink egyedi kedvezményt kaphatnak, kiemelt bánásmódban részesülnek, melyek “utcáról betérő ügyfélként”, közvetlenül a bankfiókban nem elérhetők.

Partnereink

Budapest Bank
Cetelem bank
Cib bank
Erste bank
K&H bank
OTP bank
Takarékbank
Unicredit bank
Ober bank
Sopron bank
Dt Bank
Sberbank
Raiffeisen Bank
MKB Bank
Hitelpont
Fundamenta
OTP ingatlanlízing
OTP Egészségpénztár