Siklós - Máriagyűdön 108 m²-es családi ház eladó

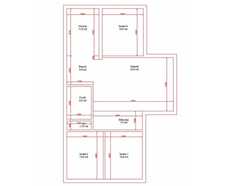
Eladó Máriagyűd egyik rendezett utcájában egy 1996-ban épült, folyamatosan karbantartott és modernizált családi ház. Az ingatlan 108 m², 3 szoba, külön WC és fürdőszoba, valamint egy tágas amerikai konyhás nappali található benne. Az épület Porotherm 38-as téglából készült, amely teljes körű homlokzati, lábazati és födém hőszigetelést is kapott, így energetikailag rendkívül stabil. Külön értéknövelő tényező a beton födém, amelynek köszönhetően a tetőtér beépíthető, így a lakótér a jövőben tetszés szerint bővíthető. Az ingatlan fenntartási költségei minimálisak, köszönhetően az 5 kW-os napelemrendszernek, amely a teljes áramfogyasztást fedezi. A rendszer 7,5 kW-...

Eladó Máriagyűd egyik rendezett utcájában egy 1996-ban épült, folyamatosan karbantartott és modernizált családi ház. Az ingatlan 108 m², 3 szoba, külön WC és fürdőszoba, valamint egy tágas amerikai konyhás nappali található benne. Az épület Porotherm 38-as téglából készült, amely teljes körű homlokzati, lábazati és födém hőszigetelést is kapott, így energetikailag rendkívül stabil. Külön értéknövelő tényező a beton födém, amelynek köszönhetően a tetőtér beépíthető, így a lakótér a jövőben tetszés szerint bővíthető. Az ingatlan fenntartási költségei minimálisak, köszönhetően az 5 kW-os napelemrendszernek, amely a teljes áramfogyasztást fedezi. A rendszer 7,5 kW-ig bővíthető, és ami a legfontosabb: még 8 évig kedvező szaldó elszámolásban marad. A fűtési rendszer több lábon áll, gázkazánnal és vegyes tüzelésű kazánnal is üzemeltethető, a helyiségekben komfortos padlófűtéssel. A gépészeti kialakítás lehetővé teszi a hőszivattyús fűtésre való egyszerű átállást is. A ház hűtéséről és kiegészítő fűtéséről klímák gondoskodnak. A telken egy 32 m²-es tégla melléképület is található, amelyben egy 22 m²-es szerelőaknás garázs, valamint egy 10 m²-es tároló és kazánház kapott helyet. Az épület mögött egy statikailag előkészített, betonozott terület található, amely ideális medence elhelyezésére. Az ingatlan (beleértve az összes nyílászárót és a garázst is) teljes körű, távfelügyeletre bekötött riasztórendszerrel védett. Ez a kiváló műszaki állapotú ház ideális választás azoknak, akik értékállóságot és alacsony rezsiköltségeket keresnek. Amennyiben felkeltette érdeklődését, keressen bizalommal!

Ingatlan adatai

Azonosító: 38671

  • Ingatlan típusa :

  • Fűtés típusa :

  • Ingatlan mérete :

  • családi ház

  • Egyéb kazán

  • 108 m2

  • Szobák száma :

  • Ingatlan állapota :

  • Erkély :

  • 4

  • Felújított

  • 13 m2

Elhelyezkedés Baranya megye - Siklós

header-logo.png

Kérjen Ajánlatot

Független hitelközvetítőként valamennyi hazai pénzintézet ajánlata elérhető nálunk. Megversenyeztetjük Önnek a bankokat. A kiemelt együttműködésnek köszönhetően ügyfeleink egyedi kedvezményt kaphatnak, kiemelt bánásmódban részesülnek, melyek “utcáról betérő ügyfélként”, közvetlenül a bankfiókban nem elérhetők.

Partnereink

Budapest Bank
Cetelem bank
Cib bank
Erste bank
K&H bank
OTP bank
Takarékbank
Unicredit bank
Ober bank
Sopron bank
Dt Bank
Sberbank
Raiffeisen Bank
MKB Bank
Hitelpont
Fundamenta
OTP ingatlanlízing
OTP Egészségpénztár