Baranya megye - Pécs - Szabolcsfalu

69.990.000 Ft

Eladó 3 generációs családi ház a Budai városrészen

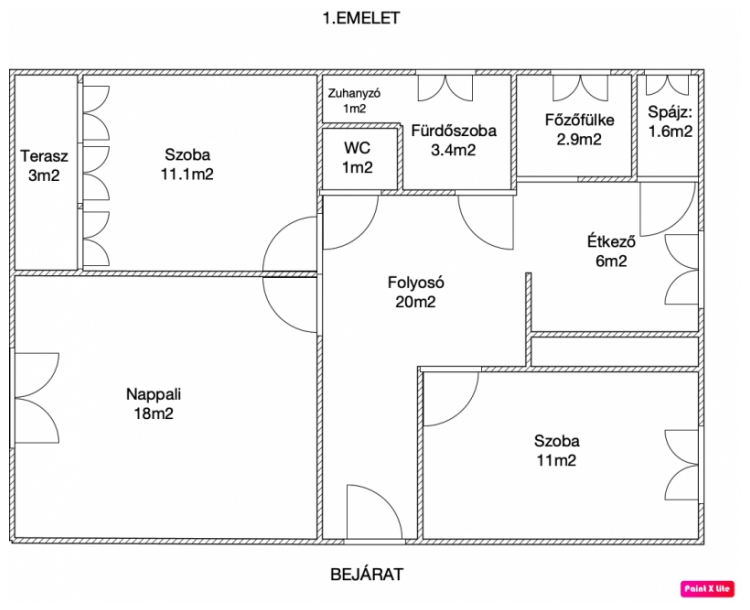
Pécs-Szabolcsfaluban, egy csendes családi házas részen, 190 m2-es családi ház eladó. A ház egy 719 m2-es, összközműves telken található. Az ingatlan elosztása kiváló! A ház lépcsőházából mindhárom lakrész külön-külön megközelíthető! Melegét gázfűtés biztosítja. Alsó szintjén előszoba, 2 hálószoba, konyha-étkező, fürdőszoba és spájz található. Konyhájában jó állapotú konyhabútor található. Az első emelet felújítandó állapotú. Itt 3 külön nyíló, tágas hálószoba, (Az utcára nézőből egy erkélyre is kiléphetünk.) közlekedő, fürdőszoba, WC, étkező, főzőfülke, és spájz is lett kialakítva. A tetőtere 1990-es években került ráépítésre. Ez a...

Pécs-Szabolcsfaluban, egy csendes családi házas részen, 190 m2-es családi ház eladó. A ház egy 719 m2-es, összközműves telken található. Az ingatlan elosztása kiváló! A ház lépcsőházából mindhárom lakrész külön-külön megközelíthető! Melegét gázfűtés biztosítja. Alsó szintjén előszoba, 2 hálószoba, konyha-étkező, fürdőszoba és spájz található. Konyhájában jó állapotú konyhabútor található. Az első emelet felújítandó állapotú. Itt 3 külön nyíló, tágas hálószoba, (Az utcára nézőből egy erkélyre is kiléphetünk.) közlekedő, fürdőszoba, WC, étkező, főzőfülke, és spájz is lett kialakítva. A tetőtere 1990-es években került ráépítésre. Ez a szint igen jó állapotú! Nappalija mellett még 3 félszoba, konyha-étkező, fürdőszoba és WC is található. A ház aljában van egy tágas utcára néző garázs is. Az ingatlan tehermentes. Hívjon, tekintse meg, és tegyen egy ajánlatot!

Ingatlan adatai

Azonosító: 38502

  • Ingatlan típusa :

  • Fűtés típusa :

  • Ingatlan mérete :

  • családi ház

  • Gáz cirkó

  • 189.7 m2

  • Szobák száma :

  • Ingatlan állapota :

  • Erkély :

  • 6 + 3

  • Átlagos

  • 6 m2

Extrák

Elhelyezkedés Baranya megye - Pécs - Szabolcsfalu

header-logo.png

Kérjen Ajánlatot

Független hitelközvetítőként valamennyi hazai pénzintézet ajánlata elérhető nálunk. Megversenyeztetjük Önnek a bankokat. A kiemelt együttműködésnek köszönhetően ügyfeleink egyedi kedvezményt kaphatnak, kiemelt bánásmódban részesülnek, melyek “utcáról betérő ügyfélként”, közvetlenül a bankfiókban nem elérhetők.

Partnereink

Budapest Bank
Cetelem bank
Cib bank
Erste bank
K&H bank
OTP bank
Takarékbank
Unicredit bank
Ober bank
Sopron bank
Dt Bank
Sberbank
Raiffeisen Bank
MKB Bank
Hitelpont
Fundamenta
OTP ingatlanlízing
OTP Egészségpénztár