Baranya megye - Pécs - Belváros

250.000 Ft

Belvárosi igényes tégla lakás kiadó!

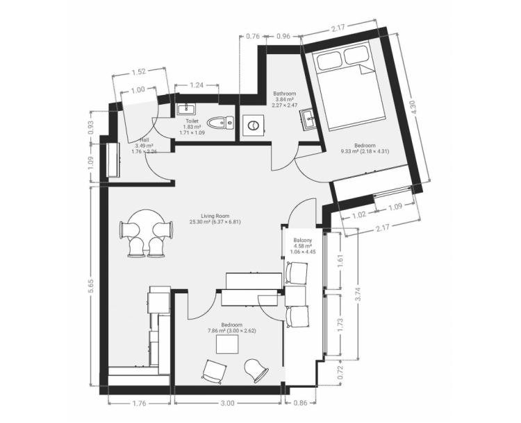
Pécs belvárosában, a Koller utcában kiadó egy 2018-ban épült 3 emeletes társasház harmadik emeletén elhelyezkedő, 56 m2-es, amerikai -konyha nappalis, 2 hálószobás. nagy erkélyes, igényes és újszerű lakás! Alaprajz a fotók között! A korszerű hőszivattyús padlófűtés és mennyezeti hűtés nagyon kedvező rezsit biztosít. A lakás bútorozott és részben felszerelt. 2 havi kaukció és egy havi bérleti díj kifizetése után minimum 1 éves szerződéssel bérelhető! Átadás előtt tisztasági festést kap. Keressen bizalommal!

Ingatlan adatai

Azonosító: 38246

  • Ingatlan típusa :

  • Ingatlan mérete :

  • Ingatlan állapota :

  • Emelet :

  • Erkély :

  • Lakás

  • 56 m2

  • Újszerű

  • 3. emelet

  • 5 m2

  • Ingatlan szerkezete :

  • Szobák száma :

  • Fűtés típusa :

  • Lift :

  • Energetika :

  • Tégla

  • 2 + 1

  • Hőszivattyú

  • Nincs

  • A+

Elhelyezkedés Baranya megye - Pécs - Belváros

header-logo.png

Kérjen Ajánlatot

Független hitelközvetítőként valamennyi hazai pénzintézet ajánlata elérhető nálunk. Megversenyeztetjük Önnek a bankokat. A kiemelt együttműködésnek köszönhetően ügyfeleink egyedi kedvezményt kaphatnak, kiemelt bánásmódban részesülnek, melyek “utcáról betérő ügyfélként”, közvetlenül a bankfiókban nem elérhetők.

Partnereink

Budapest Bank
Cetelem bank
Cib bank
Erste bank
K&H bank
OTP bank
Takarékbank
Unicredit bank
Ober bank
Sopron bank
Dt Bank
Sberbank
Raiffeisen Bank
MKB Bank
Hitelpont
Fundamenta
OTP ingatlanlízing
OTP Egészségpénztár