
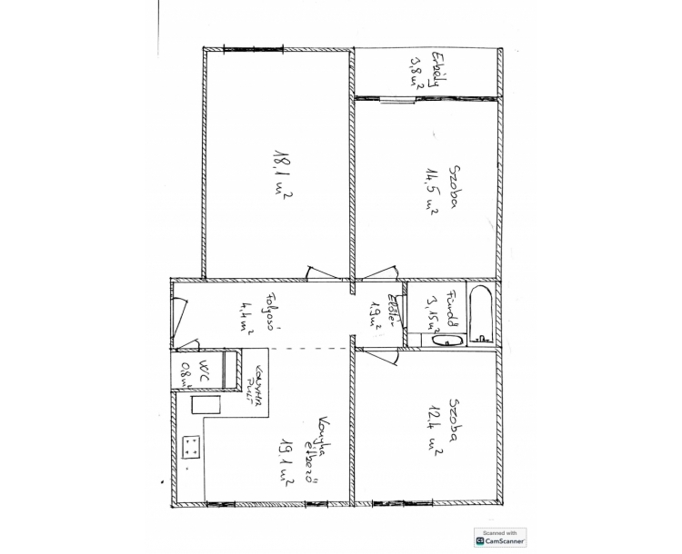
Pécs- Rózsadomb nyugodt részén, a Fagyöngy utcában eladó egy 4 emelete, hőszigetelt lakóház 3. emeletén elhelyezkedő 3 külön nyíló szobás + nagy konyha- étkezős, 74 m2- es, erkélyes és felújított lakás! A lépcsőház tiszta és rendezett, megtakarítása is van, hőszigetelt, nyílászárói cseréltek már és kamerás megfigyelő rendszer lett telepítve mindkét bejáratához! A lakás az elmúlt évek során felújításokon esett át! - A félszoba falának kivételével egy nagy, 21 m2- es konyha - étkező lett kialakítva, modern bútorral és beépíthető gépekkel, a mosógép is itt kapott helyet. - Az összes nyílászárója ki lett cserélve, beleértve a beltéri ajtókat is - ablakai redőnyösek és szúnyoghálóval is felszereltek és biztonsági bejárati ajtaja van! - A loggia nagyon hangulatosan lett kialakítva (burkolat, redőny, szúnyogháló, dekor). - Fürdőszobája teljesen felújított (RAVAK kád, külön zuhany csaptelep, új vízvezetékek, stb.) - A lakás burkolatai: - Előszoba konyha és Wc: vinyl, szobák: padlószőnyeg (alatta laminált parketta), fürdőszoba: járólap, falon vinyl, loggia: összepattintható kültéri fa járólap. - Minden szoba és az étkezős konyha is klímával felszerelt!!!! Fűtését távhő adja, új radiátorokkal, melyen hőmennyiség mérő van. Az alagsorban van egy 2 lakás által használt nagy tároló is, ami megközelítőleg 14 m2. Kifejezetten ajánlom azoknak, akinek fontos a 3 külön nyíló szoba, de mégis szeretnének egy családi együttlétre alkalmas teret (konyha - étkező) és szeretnének erkélyt is! A környék jó infrastruktúrával megáldott, minden fontos kiszolgálóegység és buszmegálló a közelben. Amennyiben felkeltette érdeklődését, keressen bizalommal!
Ingatlan típusa :
Ingatlan mérete :
Ingatlan állapota :
Emelet :
Erkély :
Lakás
74 m2
Felújított
3. emelet
4 m2
Ingatlan szerkezete :
Szobák száma :
Fűtés típusa :
Lift :
Energetika :
Panel
3
Távfűtés (egyedi)
Nincs
-
Független hitelközvetítőként valamennyi hazai pénzintézet ajánlata elérhető nálunk. Megversenyeztetjük Önnek a bankokat. A kiemelt együttműködésnek köszönhetően ügyfeleink egyedi kedvezményt kaphatnak, kiemelt bánásmódban részesülnek, melyek “utcáról betérő ügyfélként”, közvetlenül a bankfiókban nem elérhetők.