Harkányban 273 m2- es családi ház eladó!

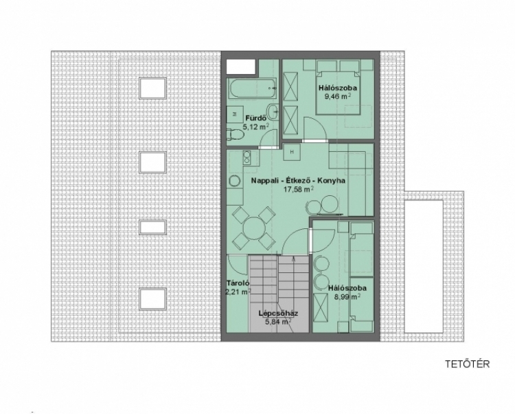
Harkány nyugodt, belvároshoz közeli részén berendezéssel együtt eladó egy 454 m2- es telken elhelyezkedő, 273 m2- es, tulajdoni lapon lakóház megnevezésű ingatlan, mely jelenleg egy jól működő és pénzt termelő apartmanházként üzemel. Akár teljes berendezéssel! A ház 4 szintes, mely alagsorból (kazánház és tárolók), földszintből (közösségi tér, két apartman és konyha- étkező), 1. emeletből (3 apartman), és tetőtérből (két hálószobás apartman) áll. Alaprajzok a fotók között megtalálhatók. 2020-21'- es évben felújításon esett át, mely magában foglalta a fürdőszobák felújítását, burkolatok cseréjét, nyílászárók cseréjét, konyhabútorok cseréjét, felújítását ...

Harkány nyugodt, belvároshoz közeli részén berendezéssel együtt eladó egy 454 m2- es telken elhelyezkedő, 273 m2- es, tulajdoni lapon lakóház megnevezésű ingatlan, mely jelenleg egy jól működő és pénzt termelő apartmanházként üzemel. Akár teljes berendezéssel! A ház 4 szintes, mely alagsorból (kazánház és tárolók), földszintből (közösségi tér, két apartman és konyha- étkező), 1. emeletből (3 apartman), és tetőtérből (két hálószobás apartman) áll. Alaprajzok a fotók között megtalálhatók. 2020-21'- es évben felújításon esett át, mely magában foglalta a fürdőszobák felújítását, burkolatok cseréjét, nyílászárók cseréjét, konyhabútorok cseréjét, felújítását és egyéb szépészeti megoldásokat. A ház fűtését gázkazán biztosítja padlófűtéssel. Az épület jól tartja a hőt, hőszigetelt tetőtérnek és a vastag 40 cm- es falazatának köszönhetően! Fontos, hogy a padlófűtésnek köszönhetően könnyen kivitelezhető a fűtés korszerűsítés hőszivattyús megoldással és akár napelemmel kiegészítve. Ami még fontos: Az ingatlan villamos hálózata is fel lett újítva az apartmanok kialakításakor, 3 fázis van. Parkolás 6 autóval is megoldható (a jelenlegi 6 apartmanhoz). melyet a dupla garázs és térkövezett beállók biztosítanak. Lehetőségek az ingatlanban: - apartmanként tovább üzemeltetni és pénzt keresni vele, - több generációs családi házként használni, - részben otthonként használni, részben bérbe adni, - alkalmas több külön bejáratú lakás kialakítására is, - orvosi rendelőnek, szolgáltatóipari vállalkozásnak kiadni, felső szintet lakásként használni. Amennyiben nagyobb alapterületű otthont keres, akár több generációs házat, vagy tovább működtetné apartmanként, netán kialakítanak több lakást eladásra, bérbeadásra, akkor keressen bizalommal!

Ingatlan adatai

Azonosító: 37546

  • Ingatlan típusa :

  • Fűtés típusa :

  • Ingatlan mérete :

  • családi ház

  • Gáz cirkó

  • 273 m2

  • Szobák száma :

  • Ingatlan állapota :

  • Erkély :

  • 6

  • Felújított

  • 25 m2

Elhelyezkedés Baranya megye - Harkány

header-logo.png

Kérjen Ajánlatot

Független hitelközvetítőként valamennyi hazai pénzintézet ajánlata elérhető nálunk. Megversenyeztetjük Önnek a bankokat. A kiemelt együttműködésnek köszönhetően ügyfeleink egyedi kedvezményt kaphatnak, kiemelt bánásmódban részesülnek, melyek “utcáról betérő ügyfélként”, közvetlenül a bankfiókban nem elérhetők.

Partnereink

Budapest Bank
Cetelem bank
Cib bank
Erste bank
K&H bank
OTP bank
Takarékbank
Unicredit bank
Ober bank
Sopron bank
Dt Bank
Sberbank
Raiffeisen Bank
MKB Bank
Hitelpont
Fundamenta
OTP ingatlanlízing
OTP Egészségpénztár