Baranya megye - Szentlőrinc

44.900.000 Ft

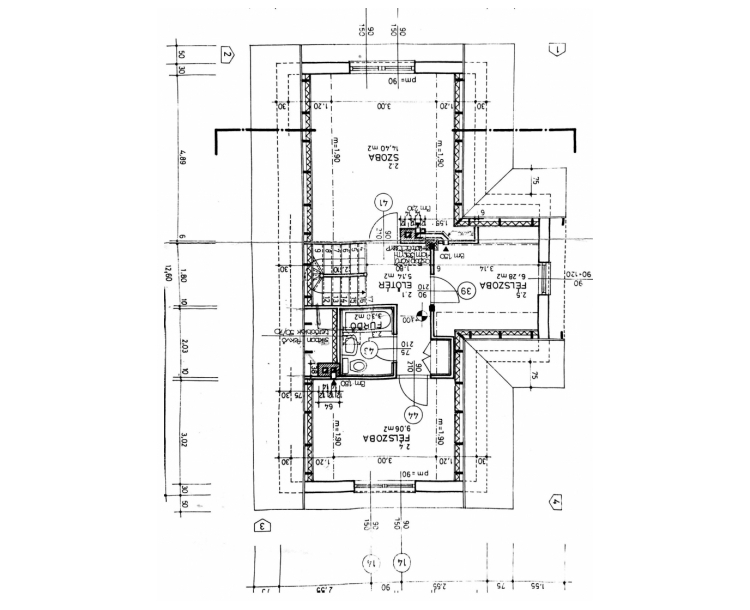
Szentlőrincen 102 m2- es családi ház eladó!

Szentlőrinc csendes zsákutcájában eladó egy 1995 -ben épült, 3,5 szobás, 102 m2- es téglaépítésű családi ház! A jól kihasználható, megfelelő formájú telek mérete 1542 m2, melyen több melléképület és egy fedett gépkocsibeálló is megtalálható. Köszművek: Víz, Villany van bekötve, csatorna és gáz az utcában a kapu előtt. A házról: Az 1995-ben, 38-as porotherm téglából épült ház átlagos/ részben felújítandó állapotú. Mivel a vakolás elmaradt, javasolt egy homlokzati hőszigetelés. A födém üveggyapottal szigetelt, tetőszerkezet jó, héjazat beton cserép. Az alsó szintje jó állapotú, az emeleti helyiségek felújítandóak, a két fürdőszobájából az alsó jó állapotú,...

Szentlőrinc csendes zsákutcájában eladó egy 1995 -ben épült, 3,5 szobás, 102 m2- es téglaépítésű családi ház! A jól kihasználható, megfelelő formájú telek mérete 1542 m2, melyen több melléképület és egy fedett gépkocsibeálló is megtalálható. Köszművek: Víz, Villany van bekötve, csatorna és gáz az utcában a kapu előtt. A házról: Az 1995-ben, 38-as porotherm téglából épült ház átlagos/ részben felújítandó állapotú. Mivel a vakolás elmaradt, javasolt egy homlokzati hőszigetelés. A födém üveggyapottal szigetelt, tetőszerkezet jó, héjazat beton cserép. Az alsó szintje jó állapotú, az emeleti helyiségek felújítandóak, a két fürdőszobájából az alsó jó állapotú, a felső befejezendő. Felújítás után tökéletes családi otthon válik belőle. A belső elrendezése tökéletes, szobái, konyhája és fürdőszobái külön nyílóak. Kifejezetten ajánlom fiatal pároknak és gyermekes családoknak! Amennyiben felkeltette érdeklődését, keressen bizalommal!

Ingatlan adatai

Azonosító: 26008

  • Ingatlan típusa :

  • Fűtés típusa :

  • Ingatlan mérete :

  • családi ház

  • Cserépkályha/kandalló

  • 102 m2

  • Szobák száma :

  • Ingatlan állapota :

  • Erkély :

  • 3 + 1

  • Átlagos

  • Nincs

Extrák

Elhelyezkedés Baranya megye - Szentlőrinc

header-logo.png

Kérjen Ajánlatot

Független hitelközvetítőként valamennyi hazai pénzintézet ajánlata elérhető nálunk. Megversenyeztetjük Önnek a bankokat. A kiemelt együttműködésnek köszönhetően ügyfeleink egyedi kedvezményt kaphatnak, kiemelt bánásmódban részesülnek, melyek “utcáról betérő ügyfélként”, közvetlenül a bankfiókban nem elérhetők.

Partnereink

Budapest Bank
Cetelem bank
Cib bank
Erste bank
K&H bank
OTP bank
Takarékbank
Unicredit bank
Ober bank
Sopron bank
Dt Bank
Sberbank
Raiffeisen Bank
MKB Bank
Hitelpont
Fundamenta
OTP ingatlanlízing
OTP Egészségpénztár