Baranya megye - Pécs - Belváros

59.900.000 Ft

Hangulatos belvárosi lakás a Dzsámi szomszédságában

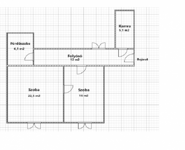
Pécs történelmi szívében, a Dzsámi közvetlen közelében, a Mária utcában kínálunk eladásra egy 60 m²-es, téglaépítésű, magasföldszinti lakást. Ez a lakás ötvözi a belvárosi élet kényelmét a régi polgári otthonok hangulatával – vastag falai télen megtartják a meleget, nyáron pedig természetes hűvöset biztosítanak. A lakásban két tágas, világos szoba, egy hosszú konyha, valamint egy nagy méretű fürdőszoba található. A fűtésről gázkonvektor és gáz Héra gondoskodik. A ház villamoshálózata nemrég bővítésre került, a tetőfelújítás pedig hamarosan megvalósul, így a műszaki állapot megbízható, karbantartott. A lakáshoz tartozik egy 4 m²-es saját tároló is, ami k...

Pécs történelmi szívében, a Dzsámi közvetlen közelében, a Mária utcában kínálunk eladásra egy 60 m²-es, téglaépítésű, magasföldszinti lakást. Ez a lakás ötvözi a belvárosi élet kényelmét a régi polgári otthonok hangulatával – vastag falai télen megtartják a meleget, nyáron pedig természetes hűvöset biztosítanak. A lakásban két tágas, világos szoba, egy hosszú konyha, valamint egy nagy méretű fürdőszoba található. A fűtésről gázkonvektor és gáz Héra gondoskodik. A ház villamoshálózata nemrég bővítésre került, a tetőfelújítás pedig hamarosan megvalósul, így a műszaki állapot megbízható, karbantartott. A lakáshoz tartozik egy 4 m²-es saját tároló is, ami külön értéket képvisel a belvárosi környezetben. Az ingatlan tehermentes, és a vételár megfizetését követően azonnal költözhető. Elhelyezkedése miatt ideális választás fiataloknak, befektetőknek, vagy szállásadási célra – akár Airbnb, akár hosszú távú bérbeadás formájában is könnyen hasznosítható. A Mária utca a Dzsámi és a Széchenyi tér közvetlen közelében fekszik, mégis csendes és elegáns rész. A környéken kávézók, éttermek, kulturális helyszínek, valamint a Pécsi Tudományegyetem több kara is pár perc sétára található. Ez az ingatlan nem csupán egy lakás – hanem egy darab Pécs történelméből, amelyben új otthonod vagy befektetésed formát ölthet.

Ingatlan adatai

Azonosító: 20539

  • Ingatlan típusa :

  • Ingatlan mérete :

  • Ingatlan állapota :

  • Emelet :

  • Erkély :

  • Lakás

  • 63 m2

  • 0. emelet

  • Nincs

  • Ingatlan szerkezete :

  • Szobák száma :

  • Fűtés típusa :

  • Lift :

  • Energetika :

  • Tégla

  • 2

  • Gáz (héra)

  • Nincs

  • -

Extrák

Elhelyezkedés Baranya megye - Pécs - Belváros

header-logo.png

Kérjen Ajánlatot

Független hitelközvetítőként valamennyi hazai pénzintézet ajánlata elérhető nálunk. Megversenyeztetjük Önnek a bankokat. A kiemelt együttműködésnek köszönhetően ügyfeleink egyedi kedvezményt kaphatnak, kiemelt bánásmódban részesülnek, melyek “utcáról betérő ügyfélként”, közvetlenül a bankfiókban nem elérhetők.

Partnereink

Budapest Bank
Cetelem bank
Cib bank
Erste bank
K&H bank
OTP bank
Takarékbank
Unicredit bank
Ober bank
Sopron bank
Dt Bank
Sberbank
Raiffeisen Bank
MKB Bank
Hitelpont
Fundamenta
OTP ingatlanlízing
OTP Egészségpénztár